We offer Liturgical Design Services to assist parishes and monasteries as they plan and design facilities.
We help churches envision future liturgical environments, build consensus to support fundraising, and work as a consultant on licensed professional design teams to realize those visions.
Legacy, Tradition & Authenticity
Our expertise in regional building systems and vernacular delivers designs that are authentic to their North American context, practical, cost effective, and should last to serve many generations.
Architecture for Liturgy:
Where Earth and Heaven Unite
Our work as designers is to provide physical spaces that help support the all-important meeting of God and His people in the context of Liturgy. Any worship space must be designed from the inside-out, putting first things first. We work hard to provide a beautiful context for worship and sacrament:
fluidly functional arrangements for every liturgical action,
crystal clear room acoustics with minimized noise,
transcendent use of natural light,
ideal wall surfaces for traditional iconographic adornment, and
the minimization of all unnecessary distractions.
Sts. Constantine and Helen Orthodox Church
Carrollton, TX







Provided full architectural services as Project Designer and Project Manager while employed at FGM Architects. The Architect of Record was Bob Galloway, AIA, CSI. Project Completed in 2022. Photos by Ashton Shah.
St. John the Forerunner Orthodox Church
Cedar Park, TX













Conceptual design and iconographic programming. Services rendered in 2022–2023.
St. THOMAS Orthodox Church
Fredericksburg, TX





Site Planning and Preliminary Design. Services rendered in 2025.
Sts. Peter and Paul Orthodox Church
Topeka, KS







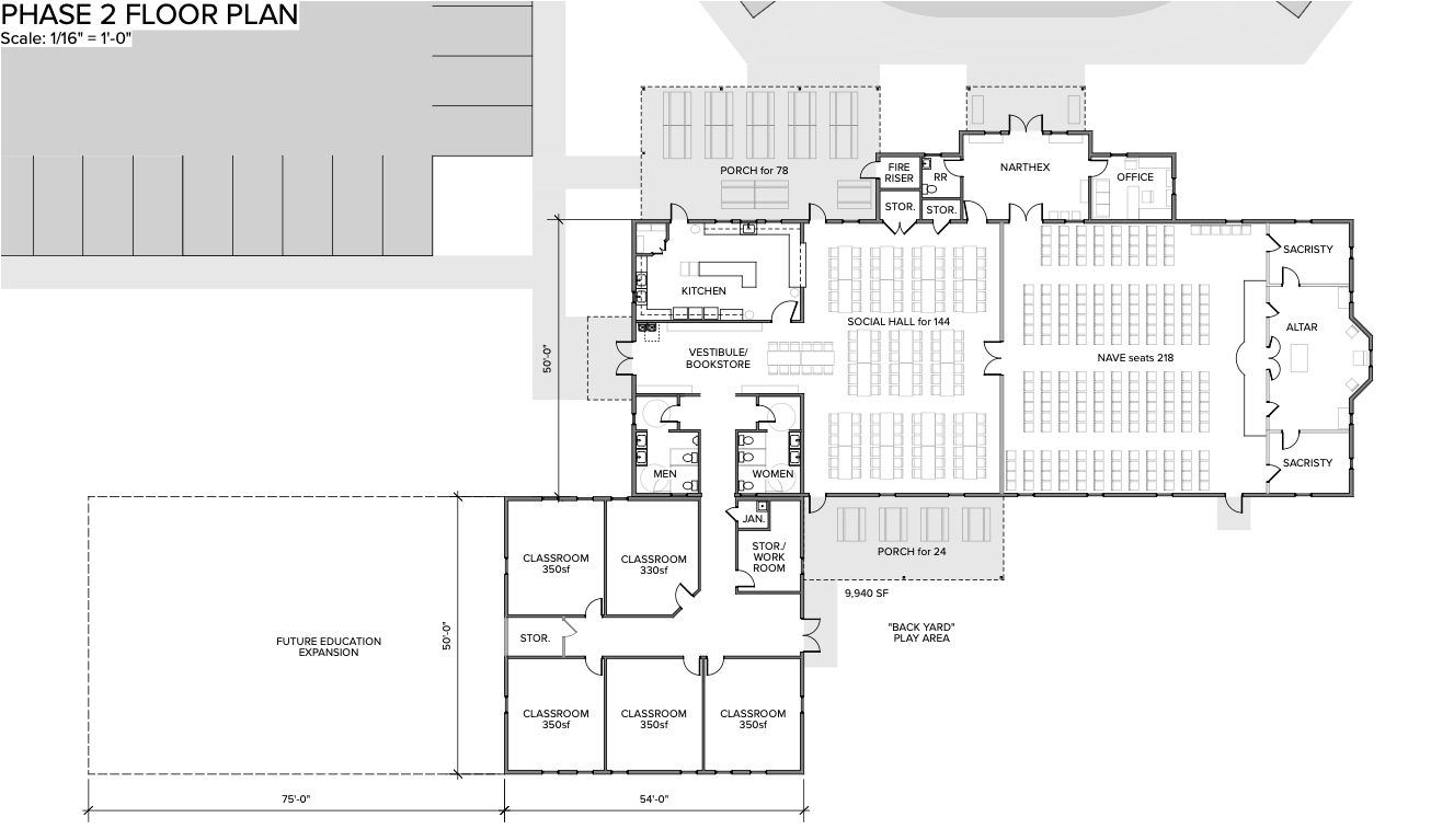
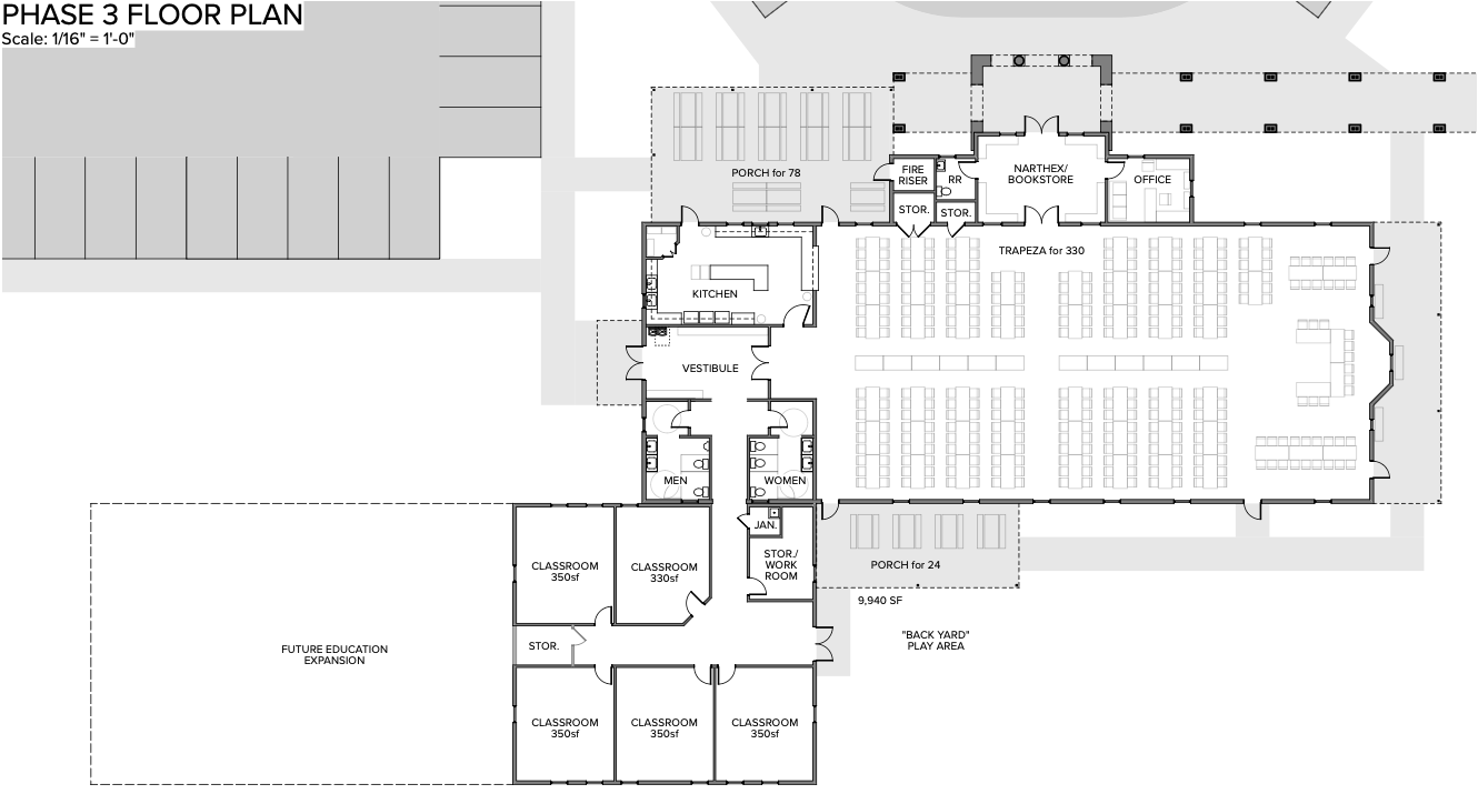
Conceptual campus planning and facility design. Services rendered in 2022.
St. Andrew Orthodox Church
Woodway, TX




Interior Renovation Design. Services rendered in 2023–2024.
Antiochian Orthodox parish
North Central Texas





Site Planning & Preliminary Design. Services rendered in 2025.
ST. JOHN THE FORERUNNER ORTHODOX CHURCH
Cedar Park, TX

Provided full architectural services as Project Designer while employed at Jackson Galloway Architects. The Architect of Record was Bob Galloway, AIA, CSI. Project Completed in 2010.
Russian Orthodox PARISH
East Central Texas
Conceptual design of a church temple using post-and-beam barn kit construction, for client fundraising.
Galloway Studio is not a licensed Architect or Architecture Firm. We provide conceptual designs to assist with planning and fundraising efforts. The services and service products we produce are not to be used for permitting, bidding, regulatory review, or construction. To inquire further, please contact us.